用途
ZSB型转刷曝气机主要用于城市生活污水及各种工业污水生化处理的三槽式或交替式氧化沟工艺,对氧化沟内的水体进行充氧。
型号说明

主要特点
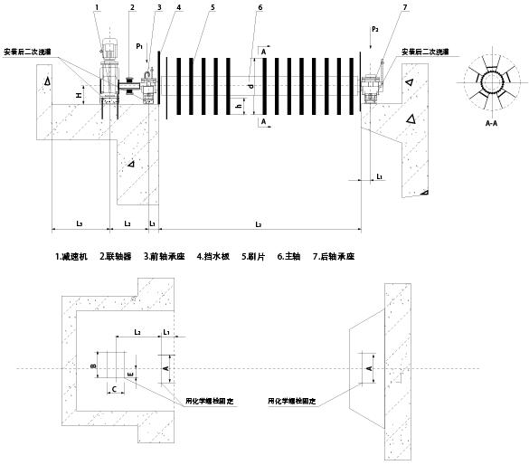
1、驱动装置采用立式户外电机,并采用圆锥圆柱齿轮减速机,齿轮为硬齿面,具有承载力大,结构紧凑、体积小、重量轻、运行平稳等特点。
2、采用弹性柱销齿式联轴器,传递扭距大、体积小、允许一定的径向和角度误差,安装简单。
3、刷片采用优质碳钢(镀锌)或不锈钢材质,组合成抱箍式,呈螺旋状排布,入水均匀、负荷平稳,安装维修方便。
4、尾部采用调心轴承及游动支座,可以克服安装误差,自动调心;同时,能补偿转刷轴困温差引起的伸缩,保证正常运行。
5、转刷曝气机负荷及充氧量可通过堰口调节液位来改变刷片的浸没水深。
结构及工作原理
该设备为卧轴式表面曝气设备,刷片均匀地布置于主轴上,当驱动装置驱动主轴转动并带动刷片开始旋转,刷体与水接触,将水抛入空中,形成水跃,充分与空气接触,空气迅速深入水中,从而完成充氧过程,并推动水流在氧化沟内循环流动。
外形及安装基础图

外形及安装基础图





